Flats Price Range:
Loan Facilities:
 
		 		 
		 		 
		 		 
	    	Its 1 BHK i.e. one bedroom, one drawing room, one balcony, one/two bathroom and one Modular Kitchen with covered bike parking facility.The Plot Area ranges from 30-50 Sq. Yds. or 270-450 Sq. Ft. Mostly the Plot front is 15 ft. Front-elevation is made up of Tile/Plaster/Granite/Stone. MS Iron railing work in balcony and SS railing in staircase, Vitrified tile flooring. Property is Freehold, Registry and Loan available.
 
		  
		  
		  
		  
	    Its 2 BHK i.e. two bedroom, one drawing room, one balcony, one/two bathroom and one Modular Kitchen with covered bike/car parking facility.The Plot Area ranges from 50-100 Sq. Yds. or 450-900 Sq. Ft. Mostly the Plot front is 15 ft. Front-elevation is made up of Tile/Plaster/Granite/Stone. MS Iron railing work in balcony and SS railing in staircase, Vitrified tile flooring. Property is Freehold, Registry and Loan available.
 
		  
		  
		  
		  
		  
	    Its 3 BHK i.e. three bedroom, one drawing room, one balcony, two/three bathroom and one Modular Kitchen with covered bike/car parking facility.The Plot Area ranges from 75-125 Sq. Yds. or 675-1125 Sq. Ft. Mostly the Plot front is 15 ft or 20 ft. Front-elevation is made up of Tile/Plaster/Granite/Stone. SS railing work in balcony and SS railing in staircase, Vitrified tile flooring. Property is Freehold, Registry and Loan available.
 
		  
		  
	    Its 4 BHK i.e. four bedroom, one drawing room, one balcony, three/four bathroom and one Modular Kitchen with covered car parking and lift facility.The Plot Area ranges from 125-200 Sq. Yds. or 1125-1800 Sq. Ft. Mostly the Plot front is 30 ft. Front-elevation is made up of Tile/Plaster/Granite/Stone. SS railing work in balcony and SS railing in staircase, Vitrified tile flooring. Property is Freehold, Registry and Loan available.
 
		  
		  
		  
		  
		  
 
	    New projects in Uttam Nagar. It is a Under Construction project. Its 3 BHK builder floors i.e. three bedroom, one drawing room, one balcony, two bathroom and one Modular Kitchen with covered car parking facility.The Plot Area is 100 Sq. Yds. Or 900 Sq. Ft. Plot Dimensions is 19 ft x 48 ft, 25ft road on front side of plot. Frontelevation has a wonderful look made up of Artifical grass and combination of Tile. Digital Vitrified tile flooring, Wall will be painted with Asian Paint. Property is Freehold, Registry and Loan available. Best place to live in, builder floor, good for rental income too (Rent expected to be approx. Rs. 17,000/-), good for investment. The flat is just 400 meter from dwarka sec 3 and 700 meter from najafgarh road, 800 meter from Uttam Nagar West Metro Station. Easy availability of cabs for Gurgaon, E-rickhsaw is available just on 1 min walk, small market is available at 5 min walk and bigger market is available at 1 km away. Flat is good for the people doing jobs in Gurgaon/Gurugram, due to ealisy communicating.
Building has units of:
100 Sq. Yd.--> UG, I, II,III , 3BHK independent Floor in Uttam Nagar with covered car parking with lift
Unique feature of the flat
Bathroom is huge and spacious bedroom. Bedroom of size 13.5ft x 12.5ft, another 2 bedroom of size 11 ft x 10ft
Near to main Najafgarh road i.e. 700 meters only.
800 meters from Uttam Nagar West Metro Station
400 meters from Dwarka sec-3
Each room are fully ventilated and airy.
Space available for Split AC Fitting
Huge Balcony
Project expected to be delivered on May 2022
 
		  
		  
		  
		  
		  
 
	    New projects in Uttam Nagar. It is a Under Construction project. Its 2 BHK builder floors i.e. two bedroom, one drawing room, one balcony, one bathroom and one Modular Kitchen with covered Bike parking facility.The Plot Area is 50 Sq. Yds. Or 450 Sq. Ft. Plot Dimensions is 15 ft x 30 ft, 10ft road on front side of plot. Digital Vitrified tile flooring, Wall will be painted with Asian Paint. Property is Freehold, Registry and Loan available. Best place to live in, builder floor, good for rental income too (Rent expected to be approx. Rs. 6,000/-), good for investment. The flat is just 500 meter from dwarka sec 3 and 600 meter from najafgarh road, 700 meter from Uttam Nagar West Metro Station. Easy availability of cabs for Gurgaon, E-rickhsaw is available just on 2 min walk, small market is available at 5 min walk and bigger market is available at 1 km away. Flat is good for the people doing jobs in Gurgaon/Gurugram, due to easily communicating.
Building has units of:
50 Sq. Yd.--> UG, I, II,III , 2BHK independent Floor in Uttam Nagar with covered bike parking
30 Sq.Yd. --> GF, 1BHK flat in uttam nagar
Unique feature of the flat
Bathroom is huge and spacious bedroom
Near to main Najafgarh road i.e. 600 meters only.
700 meters from Uttam Nagar West Metro Station
500 meters from Dwarka sec-3
Each room are fully ventilated and airy.
Space available for Split AC Fitting
Project expected to be delivered on April 2022
 
		  
		  
		  
		  
		  
 
	    New projects in Uttam Nagar. It is a Under Construction project. Its 2 BHK builder floors i.e. two bedroom, one drawing room, one balcony, one bathroom and one Modular Kitchen with covered car parking facility.The Plot Area is 50 Sq. Yds. Or 450 Sq. Ft. Plot Dimensions is 15 ft x 30 ft, 30ft road on front side of plot. For the First time Frontelevation has a wonderful look made up of Artifical grass, Waterfall Fountain and combination of Tile. Digital Vitrified tile flooring, Wall will be painted with Asian Paint. Property is Freehold, Registry and Loan available. Best place to live in, builder floor, good for rental income too (Rent expected to be approx. Rs. 10,000/-), good for investment. The flat is just 500 meter from dwarka sec 3 and 600 meter from najafgarh road, 700 meter from Uttam Nagar West Metro Station. Easy availability of cabs for Gurgaon, E-rickhsaw is available just on 2 min walk, small market is available at 5 min walk and bigger market is available at 1 km away. Flat is good for the people doing jobs in Gurgaon/Gurugram, due to ealisy communicating.
Building has units of:
50 Sq. Yd.--> UG, I, II,III , 2BHK independent Floor in Uttam Nagar with covered car parking
Unique feature of the flat
Bathroom is huge and spacious bedroom
Near to main Najafgarh road i.e. 600 meters only.
700 meters from Uttam Nagar West Metro Station
500 meters from Dwarka sec-3
Each room are fully ventilated and airy.
Space available for Split AC Fitting
Project expected to be delivered on July 2021
 
		  
		  
		  
		  
		  
 
	    New projects in Uttam Nagar. It is a Under Construction project. Its 2 BHK builder floors i.e. two bedroom, one drawing room, one balcony, one bathroom and one Modular Kitchen with covered bike parking facility.The Plot Area is 50 Sq. Yds. Or 450 Sq. Ft. Plot Dimensions is 10.5 ft x 44 ft, 12.5ft road on front side of plot and 6ft road on back side road. Front-elevation is of Tile. Vitrified tile flooring, Wall will be painted with Asian Paint. Property is Freehold, Registry and Loan available. Best place to live, builder floor, good for rental income too (Rent expected to be approx. Rs. 7,500/-), good for investment, cheaper floors/flats in Uttam Nagar. The flat is good for the people doing jobs in Gurgaon/Gurugram. The flat is just 500 meter from dwarka sec 3 and 600 meter from najafgarh road, 700 meter from Uttam Nagar West Metro Station. Easy availability of cabs for Gurgaon, E-rickhsaw is available just on 2 min walk, small market is available at 5 min walk and bigger market is available at 1 km away.
Building has units of:
50 Sq. Yd.--> UG, I, II,III , 2BHK independent Floor in Uttam Nagar with covered bike parking
33 Sq. Yd.--> GF , 1BHK independent Floor in Uttam Nagar with covered bike parking two side open
Unique feature of the flat
Bathroom is huge and 2 spacious bedroom
Near to main Najafgarh road i.e. 600 meters only.
700 meters only from Nawada Metro Station
500 meters only from Dwarka sec-3
Each room are fully ventilated and airy.
Space available for Split AC Fitting
Project expected to be on June 2021
 
		  
		  
		  
		  
		  
 
	    New projects in Uttam Nagar. Its 2 BHK builder floors i.e. two bedroom, one drawing room, one balcony, one bathroom and one Modular Kitchen with covered bike parking facility.The Plot Area is 50 Sq. Yds. Or 450 Sq. Ft. Plot Dimensions is 15 ft x 30 ft, 12.5ft road on front side of plot. Frontelevation has beautifully pained with Rustic Asiam Ultima paint. Digital Vitrified tile flooring, Wall painted with Asian Paint. Property is Freehold, Registry and Loan available with Pradhan Mantri Awas Yojana (PMAY) subsidy scheme. Best place to live in, builder floor, good for rental income too, good for investment. The flat is just 500 meter from dwarka sec 3 and 600 meter from najafgarh road, 700 meter from Uttam Nagar West Metro Station. Easy availability of cabs for Gurgaon, E-rickhsaw is available just on 2 min walk, small market is available at 5 min walk and bigger market is available at 1 km away. Flat is good for the people doing jobs in Gurgaon/Gurugram, due to ealisy communicating.
Building has units of:
50 Sq. Yd.--> UG, I, II,III , 2BHK independent Floor in Uttam Nagar with covered bike parking
25 Sq. Yd.--> GF , 1BHK independent Floor in Uttam Nagar with covered bike parking separate entry/exit
Unique feature of the flat
Bathroom is huge and spacious bedroom
Near to main Najafgarh road i.e. 600 meters only.
700 meters from Uttam Nagar West Metro Station
500 meters from Dwarka sec-3
Each room are fully ventilated and airy.
Space available for Split AC Fitting
Project expected to be delivered on May 2021
 
		  
		  
		  
		  
		  
		  
	    New projects in Uttam Nagar. KVGHC, builders in Uttam Nagar, is building the independent floor/flat in Uttam Nagar, a Under Construction project. It is a Independent Floors in Uttam Nagar i.e. one flat in one floor. Its 3 BHK independent floor i.e. Three bedroom, one drawing room, one balcony, two bathroom and one Modular Kitchen with complete covered stilt parking space at facility. The location is almost gated community society. The Plot Area is 70 Sq. Yds. Or 630 Sq. Ft. Plot Dimensions is 15 ft x 41 ft, Builder floor is situated on 20ft road. Front-elevation is of High Quality Tile. Steel and glass railing work in balcony and SS railing in staircase, Digital Vitrified tile flooring, All Wall covered with Imported wallpaper. Property is Freehold, Registry, Loan and Pradhan Mantri Awas Yojana (PMAY) Subsidy available. The flat is good for the people doing jobs in Gurgaon/Gurugram.
Building has units of:
1BHK Flat in Ground Floor
UG, Ist, IInd, IIIrd Floor- One drawing room, three bedroom, two bathroom, one kitchen and a balcony
Unique feature of the bungalow
Huge and spacious bedroom, bathroom, kitchen, drawing room and balcony
1 Km from Nawada Metro Station
400 meters only from Dwarka Sec-3
E-rickshaws are available at just 50 meters distance.
Each room are fully ventilated and airy.
Premium property at cheap property flat rate
Space available for Split AC Fitting
Project delievered on Feb 2019
 
		  
		  
		  
		  
		  
 
	    New projects in Uttam Nagar. It is a Under Construction project. Its 2 BHK builder floors i.e. two bedroom, one drawing room, one balcony, two bathroom and one Modular Kitchen with covered car parking facility.The Plot Area is 50 Sq. Yds. Or 450 Sq. Ft. Plot Dimensions is 15 ft x 30 ft, 20ft road on front side of plot. Front-elevation is of Tile and Plaster. Vitrified tile flooring, Wall will be painted with Asian Paint. Property is Freehold, Registry and Loan available with Pradhan Mantri Awas Yojana (PMAY) subsidy scheme. Best place to live, a type of gated community society, builder floor, good for rental income too, good for investment. we have also designed a concept in this for the people who are looking for 3BHK builder floor in Uttam Nagar with car Parking at Mini Cinema Hall, good for investment, cheaper floors/flats in Uttam Nagar. The flat is good for the people doing jobs in Gurgaon/Gurugram.
Building has units of:
50 Sq. Yd.--> UG, I, II,III , 2BHK independent Floor in Uttam Nagar with covered car parking
Unique feature of the flat
Bathroom is huge and 2 spacious bedroom
Near to main Najafgarh road i.e. 400 meters only.
700 meters only from Nawada Metro Station
700 meters only from Dwarka sec-3 Petrol Pump
Each room are fully ventilated and airy.
Space available for Split AC Fitting
Project delivered on Mid May 2018
 
		  
		  
		  
		  
		  
 
	    New projects in Uttam Nagar. Its 2 BHK builder floor i.e. Two bedroom, one drawing room, one balcony, two bathroom and one Modular Kitchen with covered bike parking facility.The Plot Area is 50 Sq. Yds. Or 450 Sq. Ft. Plot Dimensions is 16 ft x 29 ft, 15ft road on front side of plot.Front-elevation is of Tile and Plaster. Steel railing work in balcony and MS railing in staircase, Vitrified tile flooring, Wall will be painted with Asian Paint. Property is Freehold, Registry, Loan and Pradhan Mantri Awas Yojana (PMAY) Subsidy scheme available. The flat is good for the people doing jobs in Gurgaon/Gurugram.
Building has units of:
30 Sq. Yd.--> Ground Floor- 1 RK + Shop
50 Sq. Yd.--> UG, I, II,III , 2BHK independent Floor in Uttam Nagar with covered bike parking
Unique feature of the flat
Bathroom is huge and 2 spacious bedroom
Near to main Najafgarh road i.e. 500 meters only.
700 meters only from Nawada Metro Station
700 meters only from Dwarka sec-3 Petrol Pump
E-rickshaws are available at just 50 meters distance.
Each room are fully ventilated and airy.
Space available for Split AC Fitting
Project delivered on March 2018
 
		  
		  
		  
		  
		  
 
	    New Ready to move projects in Uttam Nagar available. Its 3 BHK builder floors i.e. Three bedroom, one drawing room, one balcony, two bathroom and one Modular Kitchen with covered car parking facility.The Plot Area is 82.5 Sq. Yds. Or 744 Sq. Ft. Plot Dimensions is 16 ft x 46.5 ft, 18ft road on front side of plot. Front-elevation is of Tile and Plaster. MS Iron railing work in balcony and SS railing in staircase, Vitrified tile flooring, Wall painted with Royal Asian Paint. Property is Freehold, Registry and Loan available. The flat is good for the people doing jobs in Gurgaon/Gurugram. Its Premium flat at the cheap flat prices. A good housing projects in Uttam Nagar with decorating your home designer and using each space properly showing how to make your room look awesome without spending money.
Building has units of:
30 Sq. Yd.--> Ground Floor- 1 RK
85 Sq. Yd.--> UG, I, II,III Flat 3BHK with covered car parking
Unique feature of the flat
Bathroom is huge and 3 spacious bedroom
Near to main Najafgarh road i.e. 500 meters only.
700 meters only from Nawada Metro Station
700 meters only from Dwarka sec-3 Petrol Pump
E-rickshaws are available at just 50 meters distance.
Low cost home decor, desginer builder floors
Each room are fully ventilated and airy.
Project delivered on Sept 2017
 
		  
		  
		  
		  
		  
 
	    A good housing projects in Uttam Nagar. Its 3 BHK builder floors i.e. Three bedroom, one drawing room, one balcony, two bathroom and one Modular Kitchen with covered bike parking facility.The Plot Area is 75 Sq. Yds. Or 675 Sq. Ft. Plot Dimensions is 16 ft x 43.5 ft, 12.5ft road on front side of plot and 6ft road on back side of plot.Front-elevation is of Tile and Plaster. MS Iron railing work in balcony and staircase, Vitrified tile flooring, Wall painted with Asian Paint. Property is Freehold, Registry and Loan available. Cheaper flat i.e. cheap property in Delhi. Good for rental income through property in Delhi.
Building has units of:
50 Sq. Yd.--> Ground Floor- 1 BHK
8 Sq. Yd. --> Shop
75 Sq. Yd.--> UG, I, II,III Flat 3BHK with covered bike parking
Unique feature of the flat
One Bathroom is huge and 3 spacious bedroom
Near to main Najafgarh road i.e. 500 meters only.
700 meters only from Nawada Metro Station
700 meters only from Dwarka sec-3 Petrol Pump
E-rickshaws are available at just 50 meters distance.
Low cost home decor, desginer builder floors
Each room are fully ventilated and airy.
Project delivered on Oct'2016
 
		  
		  
		  
		  
 
	    Its 3 BHK builder floors i.e. Three bedroom, one drawing room, two balcony, two bathroom, one dinning room and one Modular Kitchen with covered car parking facility. A good housing projects in Uttam Nagar. Plot Area is 100 Sq. Yds. Or 900 Sq. Ft. Plot Dimensions is 15 ft x 60 ft. The Plot is on 30 ft road on front side of plot and 20 ft road on back side of the plot. Front-elevation is made up of Tile. Railing in balcony and staircase is a mixture of Stainless Steel and MS Iron. Flooring is of white Marble. Its a Freehold Property having Registry and Loan available.
Building has units of:
35 Sq. Yd.--> Ground Floor- 1 BHK
7 Sq. Yd. Shop
100 Sq. Yd. -->UG, I, II, III Flat 3BHK with covered car parking
Unique feature of the flat
In actual the plot area is 110 sq. yd. and the front is 16 ft
Near to main Najafgarh road i.e. 300 meters only.
Each room are fully ventilated and airy.
Project delivered on April'2015
 
		  
		  
		  
		  
 
	    A good housing projects in Uttam Nagar. 2 BHK builder floors i.e. Two bedroom, one drawing room, one balcony, one bathroom, one lobby and one Modular Kitchen with covered bike parking facility. Plot Area is of 60 Sq. Yds. Or 540 Sq. Ft. having a plot dimensions of 15 ft x 36 ft. The plot is on 25ft road on front side of plot. Its a Freehold Property having registry and loan.Front-elevation is made up of Dholpur and granite marble. Railing in balcony and staircase is Stainless Steel. Flooring is of White Marble. A gated community flat.
Building has units of:
47.5 Sq. Yd.--> Ground Floor- 1 RK
60 Sq. Yd. --> UG, I, II Flat 2 BHK with covered bike parking
Unique feature of the flat
Bathroom is huge
Small lobby is available
Near to main Najafgarh road i.e. 100 meters only.
Each room are fully ventilated and airy.
Building is in a type of gated society i.e. near to close end of the road.
Project delivered on May'2014
 
		  
		  
		  
		  
 
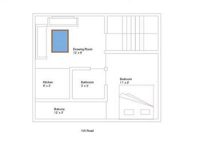
	    1 BHK builder floor - one bedroom, one drawing room, one balcony, one bathroom and one Modular Kitchen with covered bike parking facility.On 15ft road on one side of plot. Plot Area: 40 Sq. Yds. Or 360 Sq. Ft. having a Plot Dimensions of 22.5 ft x 16 ft. Front-elevation made of Dholpur and granite marble, Marble flooring, Stainless steel railing in balcony and staircase. It is a Freehold Property, Registry and Loan available.
Building has units of:
20 Sq. Yd.--> Ground Floor- 1 RK
40 Sq. Yd. --> UG, I, II, III Flat 1 BHK with covered bike parking
Unique feature of the flat
Bathroom placed in such a manner that it can be used as attached bathroom for bedroom as well as common bathroom for parking
Huge front of 22.5 feet
Near to main Najafgarh road i.e. 100 meters only.
Each room are fully ventilated and airy.
Project delivered on Dec'2013